天津濱海圖書館坐落于公園與文化新區之間的建筑之內,此處在不久的將來將成為人頭攢動的教育中心,同時也將成為自然與城市間的橋梁。

一個橢圓形的開口直穿建筑如同一只巨大的眼睛凝視著外界,球形的禮堂占據了寬闊大廳的中央位置,安靜的室內空間和建筑外綠意蔥蔥的公園倒映在鏡面上,創造出豐富的空間層次。

階梯式的書架呼應著球體空間,重重抬升,帶來如同起伏山地般延綿的景觀效果。而這層層疊疊的書架形式延續到立面上,成為了過濾刺眼陽光的百葉。

△ 建筑形體構成分析

空間中央的鏡面球體會場上倒映著周遭的環境,成為了一個可以360度縱觀全景的窗口;這是一個真正的讓人反思、沉思的空間。

巨大的內部空間中林立的書架不僅成為了萬千本書籍的安放場所,也塑造出休息、閱讀、放松、攀爬的眾多空間和通往別處的路徑,這是一個生機勃勃的公共空間。

△ 階梯式書架空間格局

極具未來感的波紋狀階梯在頂部漸漸收攏,形成了一個如同教堂拱頂般的圓頂空間,貫穿上下,連接各層,在未來這里將成為讓世人矚目的“文化走廊”。

△ 建筑結構,流線和功能示意
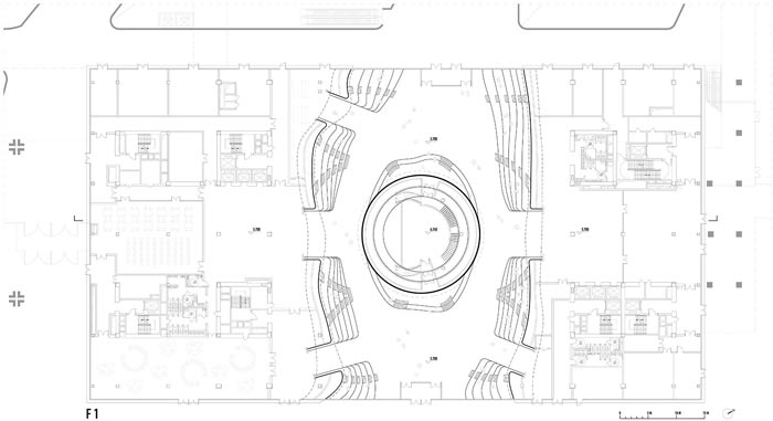
平面布置
1:建筑的地上五層空間內分布著各式各樣的教育設施,而后勤服務場所、圖書儲存室和檔案室則位于地下一層;
2:兒童和老年人閱讀區設在了便于到達的地面一層,主入口連接著通往各個內部區域的路徑,球形禮堂占據了中央位置,而階梯狀書架層層抬升,引導著人們前進;
3:數個大小不一、藏書豐富的閱覽室和休息區域散落在二層、三層各處,而最高的兩層空間內,則是會議室、辦公室、電腦室和音像室。
平面圖

△一層平面

△二層平面

△ 三層平面

△四層平面
溫馨提示
在文章的最后為大家總結,濱海文化中心區占地120000平方米,濱海文化中心區旨在加強濱海新區的獨特屬性,而天津圖書館正是其中不可或缺的一員,天津圖書館將成為建筑的中心點和聚焦點。
項目:天津濱海圖書館
地點:中國天津市濱海區
年份:2016 年開工,2017 年 10 月開放參觀
面積:34,200㎡
設計團隊:
Winy Maas, Jacob van Rijs, Nathalie de Vries with Wenchian Shi, María López Calleja, Chi Li, Ángel Sánchez Navarro, Daehee Suk, Guang Ruey Tan, Xichen Sun, Michael Zhang, Kyosuk Lee, Mariya Gyaurova, Jaime Dominguez Bálgoma, Antonio Luca Coco, Costanza Cuccato, Matteo Artico and Tomaso Maschietti.
概念設計:
Winy Maas, Jacob van Rijs, Nathalie de Vries with Renske van der Stoep, Martine Vledder, Kyosuk Lee, Gerard Heerink, Chi Li, Francisco Pomares, Nicolas Lee, Claudia Bode, Sharon Sin, Jaap Baselmans, Herman Gaarman, Hui Hsin Liao, Antonio Luca Coco, Costanza Cuccato, Matteo Artico and Tomaso Maschietti.
合作建筑師:中國天津市城市規劃設計研究院建筑分院(TUPDI)