本次為智能公司辦公室裝修設計效果圖,辦公室設計面積500平方,設計師在辦公室設計中,以創意、科技、綠色為辦公室關鍵詞,目的就是希望打造一個高效率、綠色、簡潔的辦公空間。
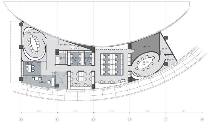
▼智能公司平面圖

▼智能公司前臺

▼智能公司展示區

▼智能公司展示區

▼智能公司過道

▼智能公司辦公區

▼智能公司辦公區

▼智能公司辦公區

▼智能公司會議室

▼經理辦公室

▼總經理辦公室入口

▼總經理辦公室

▼總經理辦公室

本次智能公司辦公室裝修設計效果圖講解到此結束,設計師在辦公室設計中,以創意、科技、綠色為辦公室關鍵詞,目的就是希望打造一個高效率、綠色、簡潔的辦公空間。