本次為舊廠房改造辦公室裝修設計效果圖,設計師在設計中,以樸素、簡潔、工業為設計理念,這一系列的設計最終形成了清新、明亮、通風的空間,同時保留了空間沉穩的工業感。
▼舊廠房改造剖面圖

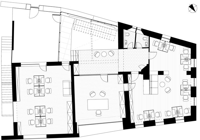
▼舊廠房辦公室一層平面

▼舊廠房辦公室二層平面

▼舊廠房辦公室入口

▼舊廠房辦公室接待區

▼舊廠房辦公室會議室

▼舊廠房辦公室樓梯

▼舊廠房辦公室二樓

▼舊廠房辦公室辦公區

▼舊廠房辦公室交流區

▼舊廠房辦公室洽談室

▼舊廠房辦公室洽談室

▼舊廠房總經理辦公室

▼舊廠房總經理辦公室

▼舊廠房辦公室衛生間

▼舊廠房辦公室陽臺

本次舊廠房改造辦公室裝修設計效果圖講解到此結束,設計師以樸素、簡潔、工業為設計理念,這一系列的設計最終形成了清新、明亮、通風的空間,同時保留了空間沉穩的工業感。